BASIC INFORMATION
Project: KJ House
Location: Ljubljana, Slovenia
Client: Private
Year: 2019-
Area: 240 sqm
Authors: BAAM architects
Typology: Single-family dwelling
Photo/Viz: BAAM Architects
DESCRIPTION
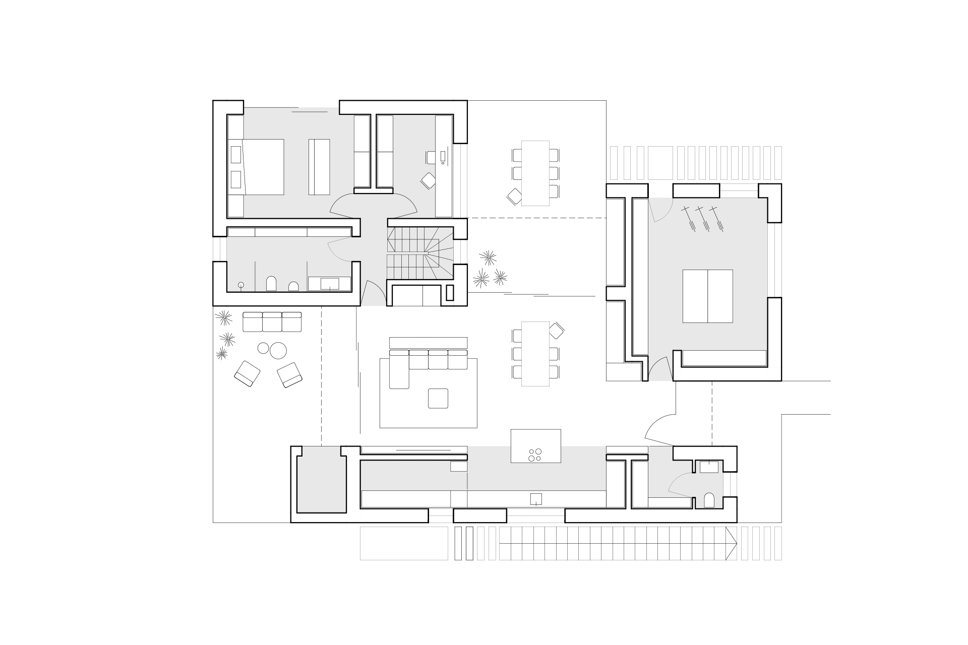
The design of the house is a collection of the client's desires, plot specifics, and the constraints of the surrounding environment. The house for a young family with two children is located at the intersection of the forest edge and the edge of a neighborhood of houses of various styles and shapes. The plot itself slopes, descending towards the neighborhood. The main challenge of the house is to capture southern light and views between neighboring houses while preventing their views into the house. The neighbors, sunlight, and views are all on the same sides of the plot, which gave the house its unique shape.
We divided the house into a base, cubes, and a roof. In the monolithic brick base, we placed the children's area. On top of it, we placed three wooden cubes that contain the parents' sleeping area, utility, and workshop area. We inserted the living area into the space between them. The wooden cubes shield it from unwanted external views and guide its views to the outside. The intermediate space functions as a square and the center of day-to-day life as it connects the various programs of the cubes and is linked to the outside through large panoramic windows. A roof covers it, giving it a double-height character in the interior.
The shape of the house, sloping terrain, and vegetation create intimacy and lure living spaces beyond their frames.
